Een degelijk gebouwde hoekwoning op eigen grond. De woning is voorzien van betonnen vloeren op alle verdiepingen, houten kozijnen met dubbel glas en een HR-ketel uit 2021. Aan de achterzijde is over de breedte van de woning een overkapping, achterin de tuin is een stenen berging met overkapping gelegen. De achtertuin heeft een gunstige zuid-west ligging.
De woning is traditioneel gebouwd met gevels van metselwerk. Zowel de begane grond als de verdiepingsvloeren zijn van beton uitgevoerd. Het zadeldak is met pannen gedekt. De verwarming en het warm water worden verzorgd door een AWB HR combi-ketel (2021). De woning beschikt over een uitgebreide meterkast voorzien van aardlekschakelaars. Daarnaast is de woning uitgerust met 5 zonnepanelen (eigendom).
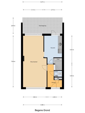
Indeling
Entree/hal met meterkast, plavuizen vloer en gestuct plafond. De toiletruimte is deels betegeld en voorzien van een staand toilet en fonteintje. De woonkamer heeft een plavuizen vloer en een gestuct plafond. De dichte keuken is voorzien van diverse inbouwapparatuur (5-pits gasstel, oven, magnetron, afzuigkap) en biedt toegang tot een trapkast en de achtertuin door middel van een loopdeur.
Eerste verdieping
Overloop met toegang tot vier slaapkamers en de badkamer. De kamers zijn afgewerkt met laminaat of zeil en hebben gestucte plafonds. De badkamer is volledig betegeld en beschikt over een douche, staand toilet en wastafel.
Tweede verdieping
Via een vaste trap bereikbare voorzolder met dakraam en opstelplaats voor de HR-ketel. Aansluitend een zolderkamer, eveneens voorzien van een dakraam.
Tuin
De achtertuin is voorzien van een houten overkapping direct tegen de achtergevel van de woning. Achterin de tuin bevindt zich een stenen berging, welke eveneens is voorzien van een aangebouwde overkapping.
Bijzonderheden
**Huurders krijgen eerste kans bij de verkoop van deze woning!** Vanaf 1 juli 2024 is er nieuw overheidsbeleid. Hierin is geregeld dat huurders van een sociale huurwoning als eerste de kans krijgen om een te koop komende huurwoning te kopen. Dit geldt alleen voor ééngezinswoningen en tijdens de eerste vier weken dat de woning te koop staat. Er gelden een aantal voorwaarden:
U krijgt voorrang als u: - in Berg en Dal woont - én een woning huurt van Waardwonen of Oosterpoort.
Lukt het niet om binnen vier weken de woning aan een huurder te verkopen? Dan kunnen andere geïnteresseerde kopers een bod doen. Ook niet huurders zijn al direct welkom op de kijkdagen en kunnen ook direct al met hun reactie komen. Als projectnotaris is 'Luum Notarissen' in Huissen gekozen.
Bijzonderheden: - Aan een hofje gelegen - Gelegen op eigen grond - Vaste trap naar ruime zolderverdieping - Totaal 5 slaapkamers aanwezig - 5 zonnepanelen en HR-ketel uit 2021 - Betonnen vloeren - Houten kozijnen met dubbel glas
Wonen in Millingen aan de Rijn: Rust, natuur en een bruisend verenigingsleven Millingen aan de Rijn is een verborgen parel in het hart van de Gelderse Poort. Hier woon je omringd door de indrukwekkende natuur van de uiterwaarden en het rivierlandschap, waar eindeloze wandel- en fietspaden direct voor de deur beginnen. Het dorp biedt een veilige en vertrouwde omgeving met een verrassend compleet winkelbestand voor al je dagelijkse behoeften.
Wat Millingen echt uniek maakt, is het rijke verenigingsleven; van sportclubs tot schutterijen, er is altijd ruimte voor gezelligheid en verbinding. Zoek je de reuring van de stad? Binnen 20 minuten sta je in het hart van Nijmegen en in slechts 10 minuten bevind je je in het karakteristieke Duitse Kleve.
Interesse in deze woning? Wij helpen je verder! Ben je enthousiast geworden? We begeleiden je graag bij de volgende stap. Tijdens een oriënterend gesprek informeren wij je vrijblijvend over:
- De verkoopprocedure: Helderheid over het proces, zodat je precies weet waar je aan toe bent. - Financieringsmogelijkheden: Wij denken graag mee over een passende financiële basis. - Je huidige woning: Benieuwd naar de waarde van je eigen huis? Wij geven je direct inzicht in de verkoopkansen en een realistische waardebepaling.
Zet de volgende stap naar jouw nieuwe thuis. Bel of mail ons voor een persoonlijke kennismaking of een bezichtiging. We horen graag van je!
Kaart
Kenmerken
Overdracht
Referentienummer
06609
Vraagprijs
€ 305.000,- k.k.
Status
Nieuw in verkoop
Aanvaarding
In overleg
Aangeboden sinds
Dinsdag 10 februari 2026
Bouw
Type object
Woonhuis, eengezinswoning, hoekwoning
Soort bouw
Bestaande bouw
Bouwperiode
1971
Dakbedekking
Dakpannen
Type dak
Zadeldak
Isolatievormen
Dakisolatie Dubbel glas Muurisolatie
Oppervlaktes en inhoud
Perceeloppervlakte
243 m²
Woonoppervlakte
94 m²
Inhoud
413 m³
Oppervlakte overige inpandige ruimten
18 m²
Oppervlakte externe bergruimte
8 m²
Oppervlakte gebouwgebonden buitenruimte
15 m²
Indeling
Aantal bouwlagen
3
Aantal kamers
6 (waarvan 5 slaapkamers)
Aantal badkamers
1 (en 1 apart toilet)
Locatie
Ligging
Aan rustige weg Beschutte ligging Dichtbij openbaar vervoer In woonwijk Nabij school
Als u onze brochures wilt bekijken, willen we graag weten wie u bent. Log alstublieft in met uw bestaande account of vul uw contactgegevens in. Bedankt!