Verkocht:Houtstraat 68, 6511 JP Nijmegen - Foto
Verkocht
+43

Houtstraat 68 6511 JP Nijmegen

  • Appartement
  • 3 kamers
  • 2 slaapkamers
  • Bouwjaar 1958
  • 64 m² gebruiksoppervlakte
  • D Energielabel D

Beschrijving

Super leuk appartement op toplocatie!

De Houtstraat 68 in Nijmegen is dé place to be! Dit gezellige appartement uit 1958 is perfect voor jou/jullie als starter maar ook voor ouders met studerende kinderen. Gelegen in de bruisende Benedenstad, bevind je je midden in het centrum van de stad met alle levendigheid om je heen.

Geweldig uitzicht en lekker koel

Op de bovenste verdieping van dit appartement geniet je van een prachtig uitzicht over de stad terwijl je ook nog eens heerlijk koel blijft dankzij de aanwezige airconditioning. De veilige entree zorgt ervoor dat je je altijd op je gemak voelt in dit knusse stulpje.

Ideale ligging

Of je nu wilt genieten van de vele winkels, cafés en restaurants in de buurt, of dat je snel bij het station of op de campus van de universiteit wilt zijn; deze woning heeft de ideale ligging voor jou en je medebewoners.

Neem snel contact met ons op en wie weet ben jij binnenkort de gelukkige bewoner van dit toffe appartement in hartje Nijmegen!

Indeling

De ingang van het gebouw bevindt zich tussen de terrassen van lunchcafe "de blonde pater". Een veilige en prettige entree. De toegang tot het appartement is op 3e verdieping van het complex. 

3e verdieping: Hal, toilet, keuken met toegang tot balkon, de keuken heeft een wasmachine-opstelling en de CV-installatie hangt daar, woonkamer (thans in gebruik als slaapkamer) met inbouwkast

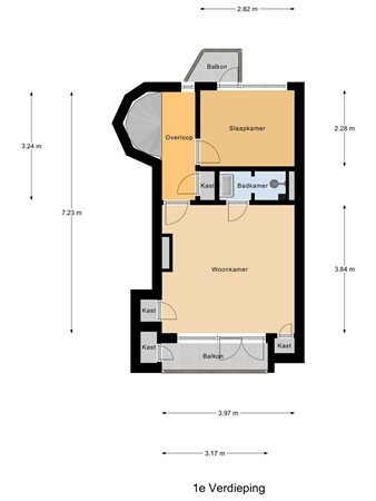
Eerste verdieping

Via de vaste trap kom je op de eerste verdieping (4e verdieping van complex) van het appartement.

4e verdieping: Overloop met inbouwkast, slaapkamer met airco toegang tot klein balkon (achterzijde), slaapkamer (thans in gebruik als woonkamer) met airco en inbouwkasten en toegang tot balkon aan de voorzijde (met kast en schitterend uitzicht over de binnenstad)

Overige verdiepingen

In het souterrain is de eigen berging

Balkon

Aan de achterzijde van de woning zijn twee kleine balkons. De voorzijde heeft op de eerste verdieping een ruim en zonnig balkon (zuid-west) van waar er een prachtig uitzicht over de Nijmeegse binnenstad is.

Bijzonderheden

- dak is vorig jaar geheel vernieuwd (vanuit VvE)
- gezonde VvE
- geheel voorzien van kunststof kozijnen met HR++ glas
- airco op twee kamers
- veilige entree
- vrijwel geen directe zij- of bovenburen (rustig!)
- een van de mooiste plekken van de binnenstad
- eigen berging in souterrain
- levendige en centrale locatie
- ook zeer geschikt voor studerende kinderen

Kaart

Kenmerken

Overdracht

Vraagprijs
€ 335.000,- k.k.
Servicekosten
€ 181,-
Elektra
€ 58,-
Gas
€ 111,-
Inrichting
Niet gestoffeerd
Inrichting
Niet gemeubileerd
Status
Verkocht
Aanvaarding
In overleg
Aangeboden sinds
Vrijdag 23 mei 2025
Laatste wijziging
Zaterdag 19 juli 2025

Bouw

Type object
Appartement, bovenwoning
Woonlaag
3e woonlaag
Soort bouw
Bestaande bouw
Bouwperiode
1958
Dakbedekking
Bitumen
Type dak
Platdak
Keurmerken
Energie prestatie advies
Isolatievormen
HR-glas

Oppervlaktes en inhoud

Woonoppervlakte
64 m²
Inhoud
248 m³
Oppervlakte externe bergruimte
5 m²
Oppervlakte gebouwgebonden buitenruimte
9 m²

Indeling

Aantal bouwlagen
2
Aantal kamers
3 (waarvan 2 slaapkamers)
Aantal toiletten
1

Locatie

Ligging
Dichtbij openbaar vervoer
In centrum

Energieverbruik

Energielabel
D

CV ketel

CV ketel
Intergas Kompakt HRE
Warmtebron
Gas
Bouwjaar
2012
Combiketel
Ja
Eigendom
Eigendom

Uitrusting

Warm water
CV-ketel
Verwarmingssysteem
Centrale verwarming
Heeft een balkon
Ja
Heeft schuur/berging
Ja

Vereniging van Eigenaren

Ingeschreven bij de KvK
Ja
Jaarlijkse vergadering
Ja
Periodieke bijdrage
Ja
Reservefonds
Ja
Meer jaren onderhoudsplan
Ja
Opstal verzekering
Ja

Kadastrale gegevens

Kadastrale aanduiding
Nijmegen C 8101
Perceeloppervlakte
259 m²
Omvang
Appartementsrecht of complex
Eigendomsituatie
Zie akte
Kadastrale aanduiding
Nijmegen C 8100
Perceeloppervlakte
259 m²
Omvang
Appartementsrecht of complex
Eigendomsituatie
Zie akte

Media

Virtuele tour

Plattegronden

Brochure(s) en overige bijlagen

Houtstraat 68, 6511 JP NIJMEGEN (1) Download
Video Download