Deze verrassend ruime en uitgebouwde vrijstaande woning aan de Zeelandsestraat 41 biedt u het comfort van gelijkvloers wonen, gecombineerd met de ruimte van een echt gezinshuis. Met een slaapkamer en badkamer op de begane grond, een inpandige garage en een heerlijke tuin, is dit een unieke kans in het hart van Millingen aan de Rijn.
De woning is door de jaren heen uitgebouwd en keurig onderhouden. Gelegen in een geliefde, kindvriendelijke buurt op steenworp afstand van de basisschool, het centrum en de prachtige natuurgebieden langs de Rijn.
Indeling
Kom binnen in een royale, lichte hal met de trapopgang naar de eerste verdieping, de meterkast en een toilet met fonteintje. Vanuit de hal is toegang tot de ruime slaapkamer op de begane grond en de aangrenzende badkamer, welke is uitgerust met een douche en een dubbel wastafelmeubel.
De sfeervolle woon- en eetkamer vormt het hart van het huis en beschikt over een gezellige open haard. Dankzij de schuifpui loopt binnen naadloos over in de tuin. De riante woonkeuken is voorzien van diverse inbouwapparatuur en biedt voldoende plek voor een grote eettafel. Vanuit de keuken bereikt u de praktische inpandige garage, waar zich ook de witgoedaansluitingen bevinden.
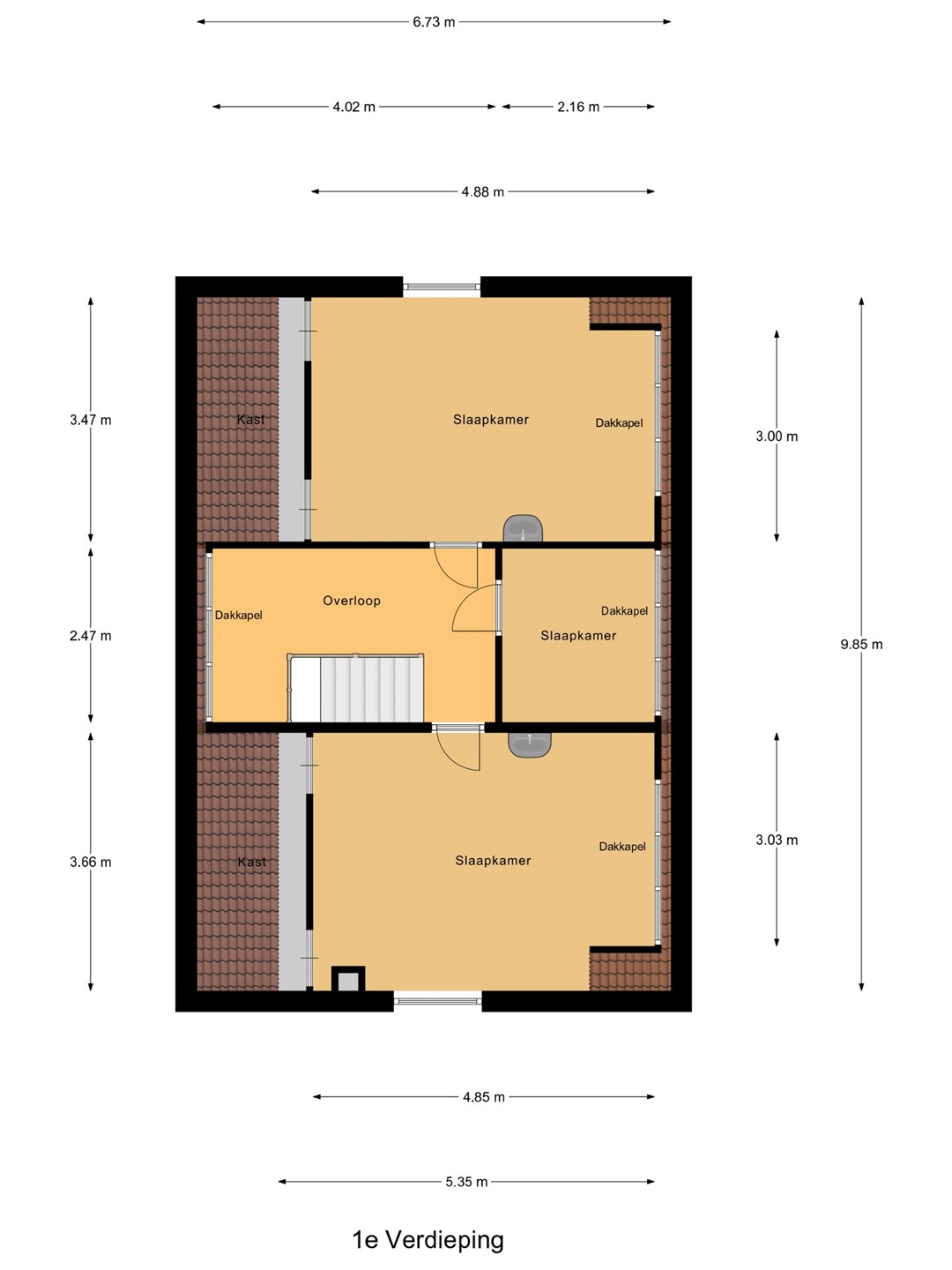
Eerste verdieping
Boven vind je een lichte overloop dankzij de dakkapel. Er zijn twee flinke slaapkamers, allebei met handige inbouwkasten en een eigen wastafel. Heb je een werkplek aan huis nodig? De extra kamer op deze verdieping is daar perfect voor. Door de brede dakkapel aan de achterzijde voelt alles hier lekker ruim aan.
Tuin
De tuin is verzorgd aangelegd. Dankzij de schuifpui geniet je optimaal van het buitenleven. De woning is aan de buitenzijde voorzien van karakteristieke luiken en praktische rolluiken. In de tuin is een houten tuinhuis.
Bijzonderheden
- Gelijkvloers wonen: Ideaal voor nu of voor de toekomst - 8 Zonnepanelen en HR++ glas dragen bij aan een lagere energierekening - Airconditioning aanwezig in zowel de woonkamer als een slaapkamer - Inpandige garage: Voor de auto, hobby of extra bergruimte - Uitbouw voor extra leefruimte op de begane grond - Gelegen in een graag bewoonde straat, nabij de basisschool en het centrum - Vernieuwde groepenkast - Platte dak is vernieuwd
Millingen aan de Rijn is een heerlijk dorp. Je woont hier midden in de natuur van de Gelderse Poort, waar je fantastisch kunt wandelen of fietsen langs de Waal en de Rijn. En heb je zin in de stad? Binnen 20 minuutjes sta je in het centrum van Nijmegen.
Interesse in deze woning? Wij helpen je verder! Ben je enthousiast geworden? We begeleiden je graag bij de volgende stap.
Tijdens een oriënterend gesprek informeren wij je vrijblijvend over:
- De verkoopprocedure: Helderheid over het proces, zodat je precies weet waar je aan toe bent. - Financieringsmogelijkheden: Wij denken graag mee over een passende financiële basis. - Je huidige woning: Benieuwd naar de waarde van je eigen huis? Wij geven je direct inzicht in de verkoopkansen en een realistische waardebepaling.
Kaart
Kenmerken
Overdracht
Referentienummer
06616
Vraagprijs
€ 469.000,- k.k.
Inrichting
Niet gestoffeerd
Inrichting
Niet gemeubileerd
Status
Nieuw in verkoop
Aanvaarding
In overleg
Aangeboden sinds
Donderdag 23 april 2026
Bouw
Type object
Woonhuis, eengezinswoning, vrijstaande woning
Soort bouw
Bestaande bouw
Bouwperiode
1977
Dakbedekking
Dakpannen
Type dak
Zadeldak
Isolatievormen
HR-glas Spouwmuren
Oppervlaktes en inhoud
Perceeloppervlakte
657 m²
Woonoppervlakte
134 m²
Inhoud
536 m³
Oppervlakte overige inpandige ruimten
17 m²
Oppervlakte externe bergruimte
10 m²
Indeling
Aantal bouwlagen
2
Aantal kamers
4 (waarvan 3 slaapkamers)
Aantal badkamers
1 (en 1 apart toilet)
Locatie
Ligging
Aan rustige weg Dichtbij openbaar vervoer In woonwijk Nabij school Platteland
Als u onze brochures wilt bekijken, willen we graag weten wie u bent. Log alstublieft in met uw bestaande account of vul uw contactgegevens in. Bedankt!